Beschrijving
Welkom in deze charmante, perfect onderhouden twee-onder-een-kapwoning aan de rustige en geliefde Vinkenstraat in Reuver.
Een woning geheel instapklaar waar je kunt gaan wonen zonder te hoeven klussen.
Deze woning heeft alles wat je zoekt: ruimte, sfeer én comfort.
De huidige eigenaren hebben met veel zorg en gevoel voor stijl een warm thuis gecreëerd dat klaar is voor nieuwe bewoners.
Ideaal voor gezinnen, mensen die wonen en werken aan huis willen combineren of iedereen die op zoek is naar een woonhuis met perfect onderhoud én moderne gemakken.
Geheel onverwacht worden woondromen werkelijkheid voor de verkopers waardoor hún fijne thuis beschikbaar komt voor nieuwe bewoners die hier met net zo veel liefde en plezier kunnen gaan wonen dan dat zij hier jarenlang hebben gewoond.
Wij zijn ervan overtuigd dat je meteen gecharmeerd zult zijn van de verrassende ruimtes én het goede onderhoud van dit woonadres.
Om de sfeer te 'proeven" kun je klikken op bijgaande link voor een korte sfeerimpressie https://youtu.be/lx30IfAsMNs
Ben je enthousiast? Dat begrijpen wij! Lees dan gerust verder....
Indeling van de woning;
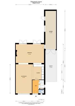
Begane grond;
Wonen met ruimte en sfeer is hier verzekerd!
De woning straalt rust en gezelligheid uit vanaf het moment dat je de woning binnenkomt.
De royale living is licht en sfeervol met een fijne indeling waarin een ruime zithoek en een grote eethoek naadloos in elkaar over kunnen gaan. De grote raampartijen zorgen voor veel daglicht en de hoogwaardige afwerking, waaronder een mooie donkere Chinese hardstenen vloer met vloerverwarming, maakt deze ruimte tot een comfortabele leefruimte.
De moderne, open keuken is een echte eyecatcher. Een luxe keuken voor echte kookliefhebbers
Strak vormgegeven met lichte hoogglans kasten, een natuurstenen stoer werkblad én voorzien van luxe inbouwapparatuur (Siemens).
Denk hierbij aan een inductiekookplaat, een (stoom) oven, een combimagnetron, een vaatwasser en een koel-vriescombinatie. De doorkijk vanuit de keuken naar de eethoek en naar de living maakt het koken hier extra gezellig.
De keuken staat in open verbinding met de gigantische multifunctionele aanbouw. Een echte meerwaarde op dit adres die voorzien is van een sfeerhaard en van airco. Openslaande tuindeuren geven toegang tot de achtertuin. vanuit deze leefruimte kom je in de bijkeuken/wasruimte/garage of hoe je deze ruimte maar wilt gaan gebruiken.....er zijn hier mogelijkheden te over. Zelfs in deze ideale ruimte zijn de muren en de vloer geïsoleerd.
Ook in deze ruimte, die voorzien is van water, elektriciteit en verwarming, is de afwerking top! Krachtstroom is eveneens aanwezig.
De eerste verdiepingsvloer;
De overloop legt verbinding tussen 3 slaapkamers. Deze fijne ruimtes zijn voorzien van kunststof kozijnen en rolluiken. De masterbed room is voorzien van airco.
Je ziet geen verwarmingsbuizen over de muren, alle buizen zijn keurig weggewerkt in de wanden.
Momenteel is één kamer ingericht als thuiswerkplek, een fijne kamer om ongestoord te kunnen werken.
De moderne badkamer op deze verdieping is voorzien van een inloopdouche, een ligbad, een toilet en een wastafel met meubel.
De badkamer is een behaaglijke ruimte om de dag te starten of te eindigen, mede vanwege de aanwezigheid van vloerverwarming.
De zolderverdieping;
Middels een vaste trap is de zolder bereikbaar. Deze verdieping is multifunctioneel inzetbaar. Mocht je een dakkapel plaatsen dan is de 4de slaapkamer in huis zo klaar. De zolder doet nu dienst als opbergzolder. Er is volop bergruimte achter de knieschotten en op de voorzolder. Hier op deze verdieping is tevens de CV installatie (2009) gesitueerd. Slapen, spelen, werken alles is hier denkbaar!
Tuin;
Aan de voorzijde van de woning ligt een strak aangelegde voortuin. Deze tuin is keurig netjes aangelegd en goed onderhouden. Een verzorgd pad leidt je naar de charmante voordeur.
De achtertuin is met liefde én kindvriendelijk aangelegd. Deze tuin biedt volop privacy om hier heerlijk te kunnen genieten.
Je vindt er meerdere zitjes, een gazon en mooie beplanting. De erfafscheiding met hoge hagen zorgt voor rust, beschutting en een fijne sfeer.
Gezellige momenten vieren met je gezin, vrienden en/of familie kan op het ruime terras direct aangrenzend aan de achterzijde van de woning. De tuin die gelegen is op het noord-oosten heeft een goede afwisseling van zon en schaduw.
Stel jezelf even voor in de ochtend met een kopje koffie in de zon de dag starten, lijkt ideaal toch?
Er is een waterpomp met sprinkler installatie aanwezig in de tuin.
De achtertuin is te bereiken vanuit de multifunctionele garage en vanuit de grote aanbouw aan de achterzijde van het woonhuis.
Oprit en Garage;
Dit woonadres beschikt over een ruime oprit en een carport zodat je altijd kunt parkeren op eigen terrein.
De multifunctionele geïsoleerde garage is voor veel doeleinden te gebruiken.
Momenteel is de garage ingericht als een soort bijkeuken gecombineerd met een wasruimte, bergruimte en klusruimte. Van origine is het een garage die eveneens te gebruiken is als kantoor, salon of praktijkruimte aan huis.
Voorzieningen zoals water, elektriciteit en verwarming zijn reeds aanwezig. Evenals een met gemak te onderhouden tegelvloer en mooie deuren.
Handige weetjes;
*De woning heeft kruipruimte
*Het energielabel B is afgegeven voordat de airco's en de zonnepanelen zijn geplaatst
*De woning is verbouwd van 2009-2011
*De riante aanbouw is gerealiseerd in 2009
*Dak van het woonhuis dateert van 2012
*Platte daken dateren uit 2020
*Krachtstroom is aanwezig in de garage
*Oprit is geheel nieuw aangelegd in 2023
*Er is een gasleiding aanwezig bij de sierhaard
*Zonnepanelen en de airco dateren uit 2021
Afmetingen volgens het meetrapport;
Gebruiksoppervlakte(n) - Wonen 124,70 m2
Gebruiksoppervlakte(n) - Overige inpandige ruimte(n) 41,30 m2
Gebruiksoppervlakte(n) - Gebouwgebonden buitenruimte(n) 20,20 m2
Bruto inhoud - Woning 582,90 m3
Deze informatie is met de nodige zorgvuldigheid samengesteld. Wij aanvaarden geen aansprakelijkheid voor onvolledigheid, onjuistheid dan wel de gevolgen daarvan.
Hier kunnen geen rechten aan worden ontleend.
Locatie en Bereikbaarheid;
De Vinkenstraat is een rustige, kindvriendelijke straat en veel groen in de omgeving. Het bos en de Maas liggen op enkele loopminuten.
Scholen, winkels, sportvoorzieningen en het NS-station zijn allemaal op korte afstand te vinden.
Reuver is centraal gelegen tussen Roermond en Venlo. Nabij de A73 die Zuid- en Noord Limburg met elkaar verbindt. Ook Duitsland en België zijn makkelijk bereikbaar vanuit Reuver. Met de bus en per trein is Reuver goed te bereiken aangezien Reuver een eigen bus- en treinstation heeft.
Heb je interesse in dit mooie woonhuis? Neem dan contact met ons op door het contactformulier in te vullen op de website www.ingepelsersmakelaardij.nl of door een mail te sturen met je gegevens naar info@ingepelsersmakelaardij.nl en wij nemen contact met je op.
Laat je verrassen tijdens een bezichtiging
Deze woning moet je ervaren! De foto's, sfeerimpressie en plattegronden geven al een goed beeld, maar pas als je binnen bent voel je de fijne sfeer die dit huis uniek maakt. We plannen graag een bezichtiging met je in.