Beschrijving
Deze multifunctionele te moderniseren hoekwoning is beschikbaar voor een nieuwe bewoner.
Een woning met potentie op een mooie locatie in Reuver.
Gelegen aan Oude Baan 16 te Reuver op loopafstand van het centrum van Reuver, de bossen en de Maas ligt dit woonhuis.
Ben jij op zoek naar een woning waar je nog écht iets van jezelf in kunt leggen?
Waar je met een beetje lef, liefde en klushanden een huis kunt omtoveren tot jouw eigen thuis?
Dan is deze hoekwoning aan de Oude Baan 16 misschien wel precies waar jij naar op zoek bent?
Deze te moderniseren gezinswoning biedt verrassend veel ruimte én mogelijkheden. Het huis is eenvoudig uitgevoerd, maar goed onderhouden en heeft een degelijke bouw. De basis is solide, de indeling logisch en met wat creativiteit en inzet maak je hier een heerlijke gezinswoning of starterswoning van.
Indeling van deze woning;
Kelder;
Dit woonadres beschikt over een handige kelder, perfect voor opslag van provisie en het bewaren van heerlijke wijntjes.
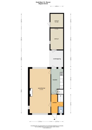
Begane grond:
Bij binnenkomst aan de voorzijde van het woonhuis via de hal valt direct de ruime opzet op.
Hier bevindt zich de trap naar de eerste verdieping, de meterkast en het toilet.
Vanuit de hal is toegang naar de woonkamer en naar de keuken.
De doorzonwoonkamer is heerlijk licht dankzij de grote ramen aan voor- én achterzijde.
Er ligt een nette laminaatvloer en de haardpartij zorgt voor karakter. De kozijnen zijn van kunststof en voorzien van HR++ glas (2009)
De woonkamer heeft mooi zicht op de ruime achtertuin en uitbreiding van deze kamer is goed denkbaar en realiseerbaar.
De keuken is eenvoudig maar functioneel met directe toegang tot de tuin.
Wie handig is, ziet hier meteen de mogelijkheden om bijvoorbeeld een open keuken te realiseren of juist een moderne leefkeuken te creëren.
Vanuit de keuken is er toegang tot de praktische kelder.
Eerste verdieping:
De bovenverdieping beschikt over 3 slaapkamers, waarvan 2 met een goede ruime afmeting. De badkamer is eenvoudig uitgevoerd met toilet en een ligbad. De doucheruimte is separaat, wat functioneel is maar ook ruimte biedt voor creatieve herindeling of uitbreiding van het sanitair. Naast de douche is hier een wastafel aanwezig.
Zolderverdieping:
De bergzolder is bereikbaar via een vlizotrap. Met wat aanpassingen zou hier eventueel een extra kamer of hobbyruimte kunnen worden gerealiseerd (stahoogte en daglicht zijn hierbij door jezelf te beoordelen).
Tuin en oprit;
Aan de voorzijde van dit woonadres ligt een verzorgde voortuin en een ruime eigen oprit. Deze lange oprit is ideaal voor parkeren op eigen terrein.
De achtertuin is onderhoudsvriendelijk aangelegd, grotendeels met grind en een aantal groenaccenten. Hier vind je ook een vrijstaande stenen berging en een handige vrije achterom. Altijd handig om met de fiets achterom te kunnen komen.
De stenen berging heeft aangrenzend een kleine opslagplaats. Daarnaast kun je vanuit de keuken droog in deze praktische ruimte komen. Door enkele aanpassingen zou hier een mooie overkapping of een uitbouw gerealiseerd kunnen worden.
Wij kunnen in ieder geval ideeën met je delen hetgeen ter plaatse gerealiseerd kunnen worden.
Parkeergelegenheid is voldoende aanwezig mede vanwege de parkeervakken aan de overkant van de straat.
Afmetingen volgens het meetrapport;
Gebruiksoppervlakte(n) - Wonen 96,20 m2
Gebruiksoppervlakte(n) - Overige inpandige ruimte(n) 26,70 m2
Gebruiksoppervlakte(n) - Gebouwgebonden buitenruimte(n) 7,40 m2
Gebruiksoppervlakte(n) - Externe bergruimte(n) 14,80 m2
Bruto inhoud - Woning 441,15 m3
Deze informatie is met de nodige zorgvuldigheid samengesteld.
Wij aanvaarden geen aansprakelijkheid voor onvolledigheid, onjuistheid dan wel de gevolgen daarvan.
Hier kunnen geen rechten aan worden ontleend.
Ligging:
De woning ligt ideaal nabij het centrum van Reuver. In de directe omgeving is veel natuurschoon zoals de bossen en de Maas die op loopafstand zijn gelegen.
Reuver is een gezellig kerkdorp tussen Roermond en Venlo met uitstekende verbindingen: de A73 op enkele autominuten, zo ben je binnen korte tijd in Roermond, Venlo, Duitsland of België.
Het trein- en busstation zijn op loopafstand van dit woonadres gelegen.
Supermarkten, scholen, sportclubs, horeca en overige benodigde voorzieningen liggen "om de hoek"!
Handig om te weten:
*Er zijn bouwtekeningen beschikbaar
*Het bouwjaar van de woning is 1961-"62
*Gedeeltelijk voorzien van dubbele beglazing
*De meterkast dateert uit 2020
*De woning is op korte termijn beschikbaar
Deze jaren ’60 woning is gelegen op een fijne plek in een rustige straat, met aan de ene kant het gezellige dorpscentrum van Reuver op loopafstand en aan de andere kant het prachtige buitengebied met bossen en de Maas . Een locatie waar je de rust van de natuur combineert met de voorzieningen van het dorp, ideaal!
Oude Baan 16 is een woning met karakter, potentie en ruimte. Ideaal voor kopers die hun eigen plek willen creëren.
Stuur ons gerust een mail met je naam, adres en telefoonnummer bij interesse naar info@ingepelsersmakelaardij.nl