Beschrijving
Een mooie, instapklare diamant! Een woning die niet alleen mooi is om te zien, maar ook energiezuinig is om in te wonen.
Ben je op zoek naar een woning waar stijl, comfort en duurzaamheid perfect samenkomen? Dan is deze uitstekend afgewerkte hoekwoning aan de Snavelbies 23 een absolute buitenkans.
In de periode 2023 tot en met 2025 is deze woning volledig verbouwd en vernieuwd. Niet oppervlakkig, maar echt grondig. De installaties, de afwerking, het wooncomfort zijn allemaal naar een hoog niveau getild.
Het resultaat is een woning waar werkelijk alles klopt, instapklaar tot in de kleinste details.
Een huis waar je binnenkomt en direct voelt, hier wil ik wonen!
Een pand hetgeen past in een luxe woonmagazine!
Snavelbies 23 is een luxe, instapklare hoekwoning waar werkelijk alles is vernieuwd en verzorgd. Met een moderne woonkamer, luxe keuken, drie comfortabele slaapkamers, een hoogwaardige badkamer en een fijne tuin met privacy biedt deze woning een zeldzame combinatie van stijl, comfort en duurzaamheid.
Kijk gerust naar deze sfeerimpressie om een indruk te krijgen van deze unieke woning.
https://youtu.be/vefkVermbas
De Snavelbies is gelegen in een rustige, prettige woonwijk in Reuver/Offenbeek.
Een fijne kindvriendelijke omgeving met veel groen en voorzieningen in de buurt.
Scholen, winkels en uitvalswegen zijn snel bereikbaar, waardoor je hier rustig woont met alle dagelijkse gemakken binnen handbereik.
Wonen met luxe, rust en comfort!
Deze woning straalt kwaliteit, klasse en zorg uit.
De gebruikte en verwerkte materialen zijn zorgvuldig gekozen, de kleuren rustig en modern én de afwerking is strak en eigentijds.
Tegelijkertijd voelt het huis warm en uitnodigend aan, een plek waar je tot rust komt na een lange dag en waar het fijn is om met je gezin te genieten en gasten te ontvangen.
Dankzij vloerverwarming, airco’s, goede isolatie en energielabel A woon je hier niet alleen comfortabel, maar ook energiezuinig en toekomstbestendig.
Indeling van de woning;
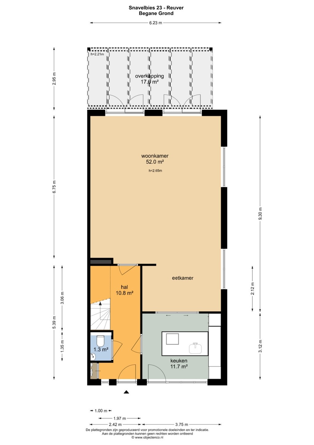
Begane grond
Via de verzorgde voortuin bereik je de entree van de woning. In de hal ervaar je direct de moderne uitstraling en het hoge afwerkingsniveau dat door de gehele woning is doorgevoerd. Vanuit hier heb je toegang tot het toilet, de trapopgang naar de verdiepingsvloer, toegang tot de keuken en tot de woonkamer. De gehele benedenverdieping is voorzien van vloerverwarming. (de verdeler is gesitueerd in de woonkamer)
Woonkamer
De woonkamer is ruim, licht en sfeervol. Grote raampartijen zorgen voor een prachtige lichtinval en versterken het open karakter van de ruimte. De strakke vloer met comfortabele vloerverwarming loopt naadloos door en vormt een rustige basis voor ieder interieur.
Hier is alle ruimte voor een royale zithoek en een gezellige eethoek, waar lange avonden tafelen of ontspannen op de bank vanzelfsprekend worden.
De aanwezige airco zorgt ervoor dat het binnenklimaat het hele jaar door aangenaam is, koel in de zomer en comfortabel in de winter.
De living heeft een semi-open verbinding met de prachtige keuken. Een grote glazen stalen taatsdeur vormt de afscheiding tussen woonkamer en keuken.
In de woonkamer aan de achterzijde zijn 2 grote openslaande deuren richting het overdekte terras. Dit ruime terrasligt meteen aangrenzend aan de verzorgde achtertuin.
Keuken
De keuken is volledig vernieuwd en vormt een echte eyecatcher binnen de woning. Modern, stijlvol en praktisch ingericht, met hoogwaardige materialen en een strakke uitstraling. De keuken is opgesteld in een T-opstelling waar bewust goed over nagedacht is. De keuken is uitgerust met luxe keukenapparatuur.
Of je nu uitgebreid wilt koken of snel iets op tafel zet, deze keuken biedt ruimte, overzicht en comfort. Een plek waar functionaliteit en design perfect samenkomen. Werkelijk een plaatje!
De keuken is toegankelijk vanuit de ontvangsthal, vanuit de woonkamer en via de voorzijde van het woonhuis.
Verdieping
Via de open trapopgang bereik je de overloop op de verdiepingsvloer. Deze verdieping heeft is voorzien van extra brede luxe laminaatvloeren.
Zelfs deze trapopgang is uitgevoerd van hoogwaardige kwaliteit met een stalen trapleuning en epoxy bedekking. Deze materiaalkeuze geeft een egale uitstraling met een luxe resultaat. De overloop die toegang geeft tot 3 slaapkamers en de luxe badkamer, is licht en ruim. Daarnaast is op deze verdieping een extra technische ruimte waar de WTW installatie (warmte terug win) en CV is gesitueerd, waar het witgoed is geplaatst en waar extra bergruimte aanwezig is.
Slaapkamers
De master bedroom is ruim opgezet en rustig gelegen. Dankzij de strakke afwerking en prettige lichtinval is dit een heerlijke ruimte om tot rust te komen. Er is volop plaats voor een groot bed en een kledingkast, zonder dat de kamer zijn ruimtelijke gevoel verliest.
De tweede slaapkamer is ideaal als kinderkamer, logeerkamer of werkkamer. Netjes afgewerkt, licht en praktisch in te delen.
Ook de derde slaapkamer is volwaardig en multifunctioneel inzetbaar. Perfect als babykamer, hobbyruimte of thuiswerkplek.
Badkamer
De badkamer is volledig vernieuwd en uitgevoerd in luxe materialen en moderne tinten. Compleet uitgevoerd met een ligbad, een douche, toilet en wastafel met mooie waskommen.
Hier geniet je dagelijks van een echt wellnessgevoel. De ruimte is strak afgewerkt en ademt rust en comfort, een fijne plek om de dag ontspannen te beginnen of juist rustig af te sluiten.
Buitenruimte
De woning heeft een voor- en achtertuin. De voortuin is verzorgd aangelegd en heeft nagenoeg geen onderhoud nodig.
De achtertuin is eveneens verzorgd aangelegd, volledig omheind en biedt veel privacy. Nieuwe keramische tegels in de tuin zorgen voor een luxe uitstraling. Door de hoekligging voelt de tuin extra ruim aan.
Of je nu wilt loungen, buiten wilt eten of gewoon wilt genieten van de rust: deze tuin vormt een verlengstuk van de woning. Dankzij de vrije achterom is de tuin bovendien ook praktisch in gebruik.
De tuin is op het noorden gesitueerd hetgeen ideaal is qua temperatuur, zeker in hete zomers. Je kunt hier vooral genieten van de namiddag en avondzon.
Door de ruime overkapping meteen aan het woonhuis is het hier heerlijk lang genieten van vroeg in het voorjaar tot lang in het najaar. Mooie aanwezige verlichting maakt de achtertuin geheel compleet.
Verkopers hadden de plannen rechts achter in de tuin een schuurtje te plaatsen, deze plannen mogen nieuwe bewoners invullen indien dit wenselijk is.
Duurzaam en toekomstbestendig wonen
Deze woning is helemaal klaar voor de toekomst. Met volledige isolatie, energielabel A, vloerverwarming op de begane grond, airco’s en vernieuwde installaties woon je hier energiezuinig zonder in te leveren op comfort.
Aanvullende informatie;
*De woning is recent geheel vernieuwd met luxe materialen
*Wonen met lage maandlasten
*De kozijnen zijn van hout
*Stalen deuren, zowel dubbele- als enkele stalen deuren
*Schuifbare horren, deuren en ramen zijn voorzien van schuifbare horren
*De CV is gehuurd (all-in contract kan worden overgenomen)
*Rechts van het perceel ligt een strook grond van de gemeente die door eigenaren in gebruik genomen mag worden (overeenkomst voor €10 per jaar)
Afmetingen volgens het meetrapport;
Gebruiksoppervlakte(n) - Wonen 137,90 m2
Gebruiksoppervlakte(n) - Gebouwgebonden buitenruimte(n) 17,60 m2
Bruto inhoud - Woning 498,70 m3
Deze informatie is met de nodige zorgvuldigheid samengesteld. Wij aanvaarden geen aansprakelijkheid voor onvolledigheid, onjuistheid dan wel de gevolgen daarvan.
Hier kunnen geen rechten aan worden ontleend.
Ligging en bereikbaarheid
Enkel bestemmingsverkeer komt in deze omgeving. Het is er rustig en fijn wonen waarbij de dagelijkse voorzieningen op loop/fiets afstand te bereiken zijn.
De woning is gunstig gelegen in een kindvriendelijke omgeving nabij het centrum van Offenbeek.
Reuver is centraal gelegen tussen Roermond en Venlo. Nabij de A73 die Zuid- en Noord Limburg met elkaar verbindt. Ook Duitsland en België zijn makkelijk bereikbaar vanuit Reuver. Met de bus en per trein is Reuver goed te bereiken.
Heb je interesse in deze woning?
Vul dan het contact formulier in op www.ingepelsersmakelaardij.nl of stuur een mail met je naam, adres en telefoonnummer naar info@ingepelsersmakelaardij.nl en we nemen contact met je op.