Beschrijving

Achter de voordeur van deze woning schuilt een mooie diamant! Gaat Offenbeker Bemden 10 in Reuver jou nieuwe woonadres worden?

Voor onze opdrachtgevers bieden wij deze fantastische, instapklare woning aan Offenbeker Bemden gelegen op huisnummer 10.
De verkopers zijn terecht trots op hun woning, en wij kunnen niet ontkennen dat we er zelf ook een beetje verliefd op zijn! 

Wonen in deze woonomgeving biedt rust, gemak en comfort.
Offenbeker Bemden is een jonge, zeer gewilde woonwijk in Reuver/Offenbeek. De wijk is ruim opgezet, met diverse scholen en alle noodzakelijke voorzieningen van Offenbeek en Reuver op loop- en fietsafstand. Enkel bestemmingsverkeer komt in deze omgeving. Het is er rustig en fijn wonen. De woning is gunstig gelegen in een kindvriendelijke omgeving nabij het centrum van Offenbeek.

Wat maakt deze woning bijzonder?
Gebouwd in 2000, biedt deze woning een combinatie van modern comfort en stijlvolle details. Een sfeervolle indeling, een multifunctionele aanbouw, 3 slaapkamers, een ruime badkamer, een fijne garage met eigen oprit en buitenleven op zijn best in de prachtige tuin. De huidige bewoners gebruiken (op de haard na) geen gas meer en wonen met zeer lage maandlasten.
Bovendien is de omgeving omringd door weelderig groen , wat deze wijk bijzonder aantrekkelijk maakt voor een breed scala aan bewoners.
Kijk gerust even naar deze korte sfeerimpressie  https://youtu.be/odudj10_dt8.

Indeling van de woning
Begane grond;
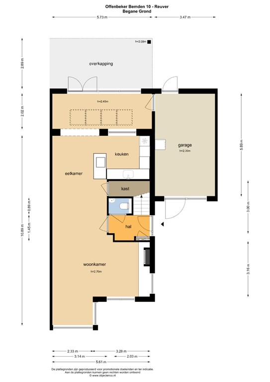
Middels de ruime oprit kom je rechts van het woonhuis bij de voordeur. Kom binnen in de hal met toegang tot de meterkast, de trapopgang naar de eerste verdiepingsvloer, het gastentoilet en tot de woonkamer. De paneeldeur geeft net even dat beetje extra vanwege de luxere uitstraling en het mooi gekozen glas. 
Wat een sfeervolle living heeft dit woonadres. De verrassende indeling maakt de woonkamer speels en uniek. Je kunt hier op diverse plekken heerlijk genieten en relaxen. De sfeer en warmte van de gashaard draagt beslist bij aan gezellige (romantische) momenten.
Vanuit de living valt meteen je oog op een ingebouwde wijnklimaatkast, een belangrijke :) en gave eye-catcher in de moderne keuken. ideaal voor de fijnproever en wijnliefhebber.
Een prachtige greeploze keuken (dec 2021) met luxe inbouwapparatuur, waaronder een hoogwaardige Bora kookplaat. De aanwezige vaatwasser is zelfs geheel nieuw (2024) De keuken heeft een fijne opstelling zodat je tijdens het koken optimaal contact hebt met je gezin, vrienden en/of familie aan tafel. 
Deze luxe keuken nodigt echt uit om hier heerlijk te kunnen kokkerellen.

De woning is uitgebreid met een multifunctionele aanbouw met lichtkoepel. Een extra fijne ruimte voor bijvoorbeeld een werkplek, speelkamer of hobbyruimte.
Vanuit de aanbouw zijn er openslaande deuren naar de achtertuin met overkapping en kom je overdekt in de ruime garage met witgoed opstelling.

Eerste verdieping;
Op de eerste verdieping bevinden zich drie comfortabele slaapkamers, perfect voor een gezin. Door de bouw van het woonhuis geven deze kamers een unieke sfeer weer. De hoge plafonds maken deze kamers erg ruimtelijk. 
Naast deze slaapkamers legt de overloop verbinding met een extra technische ruimte, een separaat toilet en de ruime badkamer. De badkamer is uitgerust met een douche en wastafel. Het separaat toilet biedt extra gemak los van de badkamer. Dit was een pré bij de bouw van de woning voor de eigenaren. In de technische ruimte is de CV geïnstalleerd (Nefit 2018) en de mechanische ventilatie. De verdiepingsvloer is voorzien van laminaat die geheel doorloopt in de kamers. Iedere kamer heeft hand bedienbare rolluiken en in elke ruimte is er een hor aanwezig.

Buiten de woning
Het buitenleven speelt een belangrijke rol bij deze woning. Met een ruim overdekt terras, 9 zonnepanelen ☀️☀️ en een volledig omheinde tuin  met houten tuinhuis, kun je het hele jaar door genieten van de buitenlucht. 
De garage is te bereiken vanuit de royale oprit, vanuit de achtertuin en vanuit de aanbouw. In de garage is de witgoed aansluiting voor wasmachine en droger. Tevens is de hier de omvormer gesitueerd van de zonnepanelen. De garage is voorzien van water, elektriciteit en van verwarming. Aan de voorzijde van de garage is een vaste pui met toegangsdeur deze is uitgevoerd in kunststof.
Ben je op zoek naar een praktijkruimte of salon aan huis, een fijne thuiswerkplek of heb je andere wensen en ideeën? 
Met deze multifunctionele garage zijn veel mogelijkheden!

Tuin;
De voortuin is onderhoudsarm aangelegd en geeft een mooi aanblik van de woning. De achtertuin de gelegen is op het noord-westen is geheel omheind en biedt veel privacy. De tuin is aangelegd met kunstgras en is betegeld. Het aanwezige tuinhuis, de stoere mooie overkapping en houten aanbouw aan het woonhuis bieden veel gemak en gezelligheid voor het hele gezin.
Dit perceel van 300m² biedt alles wat je nodig hebt voor comfortabel en rustig wonen.

Afmetingen volgens het meetrapport;
Gebruiksoppervlakte(n) - Wonen 121,00 m2
Gebruiksoppervlakte(n) - Overige inpandige ruimte(n) 21,10 m2
Gebruiksoppervlakte(n) - Gebouwgebonden buitenruimte(n) 17,10 m2
Gebruiksoppervlakte(n) - Externe bergruimte(n) 7,20 m2
Bruto inhoud - Woning 538,10 m3

Deze informatie is met de nodige zorgvuldigheid samengesteld. 
Alle verstrekte informatie moet beschouwd worden als een uitnodiging tot het doen van een bod of om in onderhandeling te treden. Wij aanvaarden geen aansprakelijkheid voor onvolledigheid, onjuistheid dan wel de gevolgen daarvan. 
Aan deze informatie kunnen geen rechten worden ontleend.

Bereikbaarheid;
Reuver is centraal gelegen tussen Roermond en Venlo. Nabij de A73 die Zuid- en Noord Limburg met elkaar verbindt. Ook Duitsland en België zijn makkelijk bereikbaar vanuit Reuver. Met de bus en per trein is Reuver goed te bereiken.
Alle (openbare) voorzieningen zoals scholen, winkels zijn in de directe nabijheid gelegen. 

Heb je interesse in deze woning? 
Vul dan het contact formulier in op www.ingepelsersmakelaardij.nl of stuur een mail met je naam, adres en telefoonnummer naar info@ingepelsersmakelaardij.nl en we nemen contact met je op.





Direct wonen zonder zorgen!
Deze woning is helemaal instapklaar,  je hoeft alleen maar te verhuizen en je kunt direct genieten van je nieuwe thuis. 
Het is een adres waar comfort, privacy en rust naadloos samenkomen. 
Hoe fantastisch zou het zijn om hier jouw nieuwe woondroom te vervullen?

Interesse? 
Spreekt deze woning je aan?... wacht dan niet te lang! 
Stuur een mail met je naam, adres en telefoonnummer naar info@ingepelsersmakelaardij.nl.
Wie weet verwelkomen wij je binnenkort in jouw nieuwe droomwoning!

Deze informatie is met de nodige zorgvuldigheid samengesteld. 
Alle verstrekte informatie moet beschouwd worden als een uitnodiging tot het doen van een bod of om in onderhandeling te treden. Wij aanvaarden geen aansprakelijkheid voor onvolledigheid, onjuistheid dan wel de gevolgen daarvan. 
Aan deze informatie kunnen geen rechten worden ontleend.

Enkel bestemmingsverkeer komt in deze omgeving. Het is er rustig en fijn wonen waarbij de dagelijkse voorzieningen op loop/fiets afstand te bereiken zijn. De woning is gunstig gelegen in een kindvriendelijke omgeving nabij het centrum van Offenbeek.

Bereikbaarheid;
Reuver is centraal gelegen tussen Roermond en Venlo. Nabij de A73 die Zuid- en Noord Limburg met elkaar verbindt. Ook Duitsland en België zijn makkelijk bereikbaar vanuit Reuver. Met de bus en per trein is Reuver goed te bereiken.
Alle (openbare) voorzieningen zoals scholen, winkels zijn in de directe nabijheid gelegen. 

Heb je interesse in deze woning? 
Vul dan het contact formulier in op www.ingepelsersmakelaardij.nl of stuur een mail met je naam, adres en telefoonnummer naar info@ingepelsersmakelaardij.nl en we nemen contact met je op.

Kenmerken