Beschrijving

Eigentijds en betaalbaar wonen op een geliefde groene én rustige woonlocatie!
Op de Nachtegaalstraat te Reuver, vind je deze verrassend ruime en moderne tussenwoning op huisnummer 2. 
Met een lichte woonkamer, een stoere zwarte keuken met spoeleiland, drie (slaap)kamers en een heerlijke tuin op het noordoosten, biedt dit huis veel woongenot.
De woning is recent voorzien van 8 zonnepanelen en heeft een nieuwe CV ketel. Goed om te weten dat die investeringen zijn reeds gedaan. Deze verduurzamingsmaatregelen zijn na de afgifte van het nog geldige energielabel C doorgevoerd. 
Je kunt ideaal instapklaar wonen op dit woonadres met lage maandlasten!!

De huidige bewoners hadden absoluut geen verhuisplannen maar geheel onverwacht kwam hun droomwoning voorbij waar zij dit jaar nog nieuwe eigenaren van gaan worden. 
Dát is de reden dat deze instapklare woning nu beschikbaar komt op de woningmarkt. 
Een unieke kans voor woningzoekenden om in het geliefde Reuver te (gaan) wonen! Wat dus niet te lang bij interesse en neem contact met ons op, er zijn nog maar enkele bezichtigingsplekken beschikbaar.

Ben je benieuwd of deze woning past in jouw woonwensen?.... lees dan gerust verder.

Indeling van de woning.
Begane grond; 
Kom binnen en voel je welkom. 
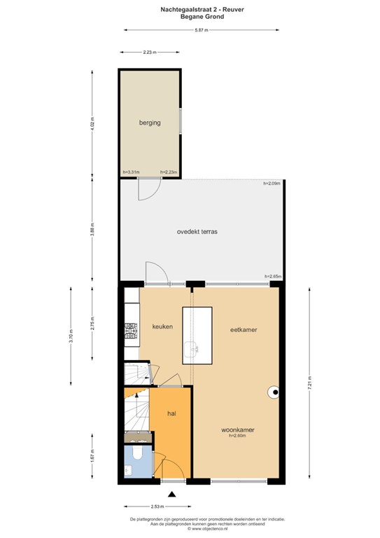
De ontvangsthal legt verbinding met het gastentoilet, de trapopgang naar de eerste verdiepingsvloer en geeft toegang tot de mooie open keuken.
De stoere, zwarte keuken – een echte blikvanger – is uitgebreid met een modern eiland uitgerust met zitbar. In de aanwezige keukenkastjes is er opbergruimte voldoende aanwezig.
Aan deze stoere baropstelling worden dagelijks goede gesprekken gevoerd, geniet je van je ontbijt in de ochtendzon of bijvoorbeeld van een hapje en een drankje met je vrienden en/of je gezin. 
De keuken staat in open verbinding met de sfeervolle woonkamer, waar de houtkachel voor extra warmte en gezelligheid zorgt. 
Een perfecte plek om te ontspannen na een drukke dag.

Vanuit de keuken bereik je de provisiekelder, ideaal voor extra opslagruimte. Momenteel hebben de huidige bewoners de wasgelegenheid gecreëerd in de kelder. Vanwege de stahoogte en de voldoende bewegingsruimte is dit een ideale plek hiervoor.

Eerste verdieping: 
De stijlvolle trap leidt naar de eerste verdieping, waar drie (slaap)kamers en een moderne badkamer te aanwezig zijn. 
Twee (slaap)kamers hebben ruime inbouwkasten, handig voor het opbergen van diverse spullen en/of kleding.
De vorige eigenaresse had in één van deze kamers wasruimte én kleedkamer. 
De praktische badkamer, beschikt over een inloopdouche, wastafel en toilet. 

Zolderverdieping: 
De zolder is bereikbaar via een vlizotrap en biedt ruimte voor de CV-installatie en meer dan voldoende extra opbergruimte.

Tuin: 
De achtertuin is een heerlijke plek om te ontspannen, met een ruime overkapping en een onderhoudsvriendelijk terras. 
Dankzij de afrolbare verandazeilen kun je hier ook bij minder weer gezellig buiten zitten. De vrijstaande stenen schuur biedt volop opbergruimte. Via de achterom heb je gemakkelijk toegang tot de tuin, die op het noordoosten is gelegen. 
Tuinieren is dé passie van de verkoopster, weelderige bloemenpracht afgewisseld met groenteplanten maken deze tuin bijzonder.
De mooie aangelegde borders met juist gekozen planten maakt deze tuin tot een plaatje. 
Een stoere houtopslag geeft tevens een mooi aanzicht in deze achtertuin.

Afmetingen volgens het meetrapport:
Woonoppervlakte: 83,30 m²
Overige inpandige ruimte: 27,00 m²
Gebouwgebonden buitenruimte: 24,10 m²
Externe bergruimte: 8,90 m²
Bruto inhoud: 377,76 m³
De informatie is met zorgvuldigheid samengesteld. Alle opgegeven maten en oppervlakten zijn indicatief. Aan deze informatie kunnen geen rechten worden ontleend.

Bijzonderheden:
*Het dak van de woning is vernieuwd in 2019
*De woning is gerenoveerd in 2011 en 2014/2015, inclusief het zandstralen van de gevels 
*De woning beschikt over kunststof kozijnen met horren en rolluiken
*De keuken is aangepast in 2021 met een prachtig eiland met stoere baropstelling
*De oven in de keuken is geheel nieuw (28-04-2024)
*Zonnepanelen zijn geplaatst op29-01-2024
*De CV installatie is nagenoeg nieuw (2023) en heeft nog garantie
*Voldoende gratis parkeergelegenheid is nabij de woning gelegen
*Een kleine strook bij de voortuin is in gebruik van de gemeente, hiervoor zijn afspraken gemaakt tegen betaling thv €10,00 per jaar.

Ligging en bereikbaarheid;
Het woonhuis ligt in een rustige, groene omgeving, vlakbij de Maas en bossen. Een prachtige omgeving voor fietsers en wandelaars.
Het centrum van Reuver, met alle benodigde voorzieningen, is gelegen op fietsafstand, net als het treinstation en de bushaltes. 
Dankzij de nabijheid van de A73 zijn steden als Roermond, Venlo en zelfs Duitsland en België binnen handbereik.

Wil je meer weten over deze woning of wil je de woning bezichtigen? 
Stuur dan een mail met je naam, adres en telefoonnummer naar info@ingepelsersmakelaardij.nl of ga naar de website www.ingepelsersmakelaardij.nl en vul het contactformulier in.
Wij nemen dan zsm contact met je op.

Kenmerken