Beschrijving

Een instapklare woning op een toplocatie in Reuver!
Welkom op dit fijne woonadres.....Wordt deze woning jou nieuwe woonlocatie? 
Wellicht is Minister Goselinglaan 20 te Reuver hét woonadres waar je naar op zoek bent!
Een fijne woning met eigen oprit en een fantastische tuin!

Minister Goselinglaan 20 te Reuver is een instapklare woning waar je meteen kunt gaan wonen en genieten zonder te klussen. Deze sfeervolle woonlocatie straalt veel gezelligheid en warmte uit.

Ben je op zoek naar een moderne en instapklare woning op een geliefde woonlocatie? 
Deze sfeervolle woning aan de Minister Goselinglaan 20 in Reuver komt beschikbaar voor nieuwe eigenaren.
Gelegen nabij het bos en op loop/fietsafstand van het centrum, woon je hier in een rustige, groene omgeving met alle voorzieningen in de nabije omgeving.
Deze woning is een ideale starterswoning en/of een woning voor een klein gezin óf om lekker alleen of met z'n tweetjes te kunnen gaan wonen en genieten.
Ben je benieuwd wat deze woning te bieden heeft? Lees dan gerust verder.

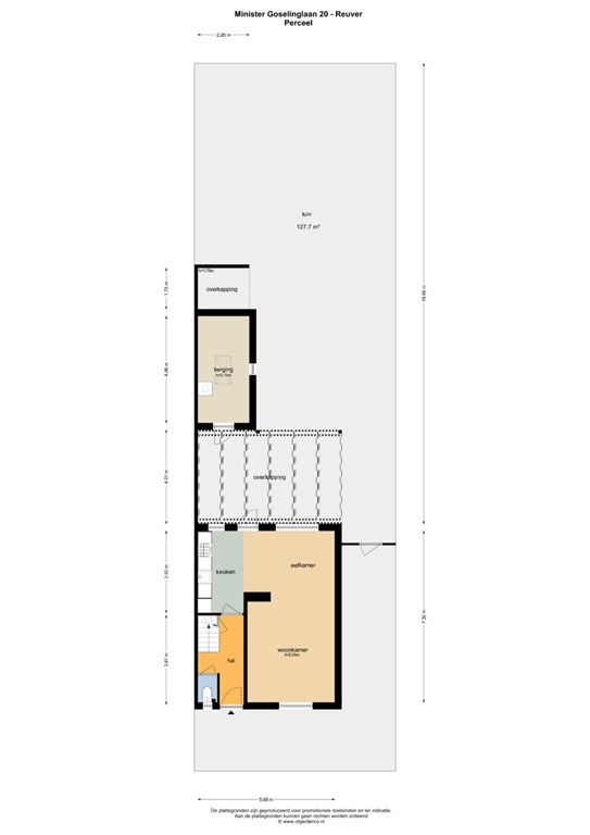
Indeling van de woning:
Begane grond;
Bij binnenkomst word je verwelkomd in een lichte entree met een moderne afwerking. Hier bevinden zich het gastentoilet, de trapopgang naar de eerste verdieping en een ruime provisiekelder. Deze kelder is ideaal voor extra opslag. Er is kruipruimte in de woning aanwezig die tevens via deze kelder te bereiken is.

De moderne lichte keuken is een echte eye-catcher en beschikt over hoogwaardige Siemens apparatuur, waaronder een nieuwe vaatwasser. De uitvoering is heel neutraal vandaar dat deze keuken beslist bij velen in de smaak zal vallen. 
De open verbinding met de sfeervolle woonkamer zorgt voor een ruimtelijk gevoel en een fijne interactie tussen beide ruimtes. Over indeling van het eet- en zitgedeelte hebben de huidige bewoners goed nagedacht. Het is een gezellige, lichte woon/leefruimte.
Aan de voorzijde is de woonkamer voorzien van een elektrisch bedienbaar rolluik voor extra comfort en privacy. De grote ramen in de kamer zijn uitgevoerd in kunststof. 
De benedenverdieping is voorzien van een moderne laminaatvloer hetgeen een rustige, mooie, strakke uitstraling geeft.

Eerste verdieping;
Vanuit de ontvangsthal kom je middels een mooi gerenoveerde trapopgang op de eerste verdiepingsvloer.
Op deze verdiepingsvloer bevinden zich 2 ruime slaapkamers, een kleinere slaap/studeer/hobbykamer én een moderne badkamer.
De slaapkamers zijn allen voorzien van kunststof kozijnen, een vliegenhor en hand bedienbare rolluiken.  
De moderne aanwezige badkamer is uitgerust met een douche, toilet en een brede wastafel. 
De badkamer is prima van formaat en is modern uitgevoerd. Een heerlijk plekje in huis om de dag goed te beginnen. Er is gekozen voor neutrale materialen en een praktische indeling op deze badkamer waardoor deze nog een tijdje meekan.

Zolder;
Extra bergruimte nodig? Via de vlizotrap bereik je de praktische bergzolder! 

Tuin;
Op dit woonadres kun je genieten van een prachtige tuin met een multifunctioneel bijgebouw.
Via de achterdeur in de keuken bereik je middels een klein trapje het ruime terras. Dit ruime terras heeft een royale overkapping. Hier kun je heerlijk genieten van het buitenleven ook bij iets minder weer.
Het aanwezige multifunctionele bijgebouw biedt volop mogelijkheden: het beschikt over witgoed aansluitingen en een klein keukenblok, perfect voor hobby’s, opslag of als extra werkruimte.

Een van de grote meerwaardes van dit woonadres is de grote achtertuin. Zie jij jezelf al genieten in alle rust met veel privacy? Of is een grote tuin belangrijk om de kinderen heerlijk te kunnen laten spelen in je eigen achtertuin?
Deze diepe tuin, is gelegen op het noordoosten, en is volledig omheind. Daarnaast biedt de tuin volop privacy. 
Achter in de tuin tref je een sfeervolle vlonder met een luxe overkapping, een ideale plek om het hele jaar door van buiten te genieten.
De tuin is bereikbaar via een vrije achterom.
De woning beschikt over een oprit met poort, waardoor je gemakkelijk en veilig je auto op eigen terrein parkeert. 
Via de vrije achterom heb je extra gemak en toegankelijkheid om bijvoorbeeld met je fiets of motor achterom te kunnen komen.

Enkele kenmerken van dit woonadres;
* Instapklaar en modern afgewerkte woning
* Gelegen op een geliefde woonlocatie nabij bos en op fiets/loopafstand van het centrum
* Ruime woonkamer met open keuken en Siemens apparatuur
* 3 slaapkamers 
* Kunststof kozijnen en de woning is voorzien van rolluiken (voordeur is van hout)
* Praktische kelder met kruipruimte 
* Een bergzolder die middels een vlizotrap bereikbaar is
* Diepe, fraai aangelegde tuin met overkapping en multifunctioneel bijgebouw
* Eigen oprit met afsluitbare poort en vrije achterom.

Afmetingen volgens het meetrapport;
Gebruiksoppervlakte(n) - Wonen 85,70 m2
Gebruiksoppervlakte(n) - Overige inpandige ruimte(n) 11,90 m2
Gebruiksoppervlakte(n) - Gebouwgebonden buitenruimte(n) 24,70 m2
Gebruiksoppervlakte(n) - Externe bergruimte(n) 10,00 m2
Bruto inhoud - Woning 398,72 m3
Deze informatie is met de nodige zorgvuldigheid samengesteld.  Wij aanvaarden geen aansprakelijkheid voor onvolledigheid, onjuistheid dan wel de gevolgen daarvan. 
Hier kunnen geen rechten aan worden ontleend.

Bereikbaarheid;
De openbare voorzieningen, winkels, restaurantjes, kapper, bakker, slager, bloemist, slijterij, opticien alles ligt binnen loop/fietsafstand. Niet te vergeten Reuver heeft tevens een bus- en treinstation. Met de bus en per trein is Reuver goed te bereiken. Reuver is centraal gelegen tussen Roermond en Venlo. Nabij de A73 die Zuid- en Noord Limburg met elkaar verbindt. Ook Duitsland en België zijn makkelijk bereikbaar vanuit Reuver. Met de bus en per trein is Reuver goed te bereiken.
Alle (openbare) voorzieningen zoals scholen, winkels zijn in de directe nabijheid gelegen. 

Wil je meer weten over deze woning? Neem dan contact met ons op. 
Stuur een mail naar info@ingepelsersmakelaardij.nl met je naam, adres en telefoonnummer of vul het contactformulier in op onze website.
Wij nemen dan contact met je op.

Kenmerken